54000 Nancy
T3, avec balcon et parking privatif
225 000 € *
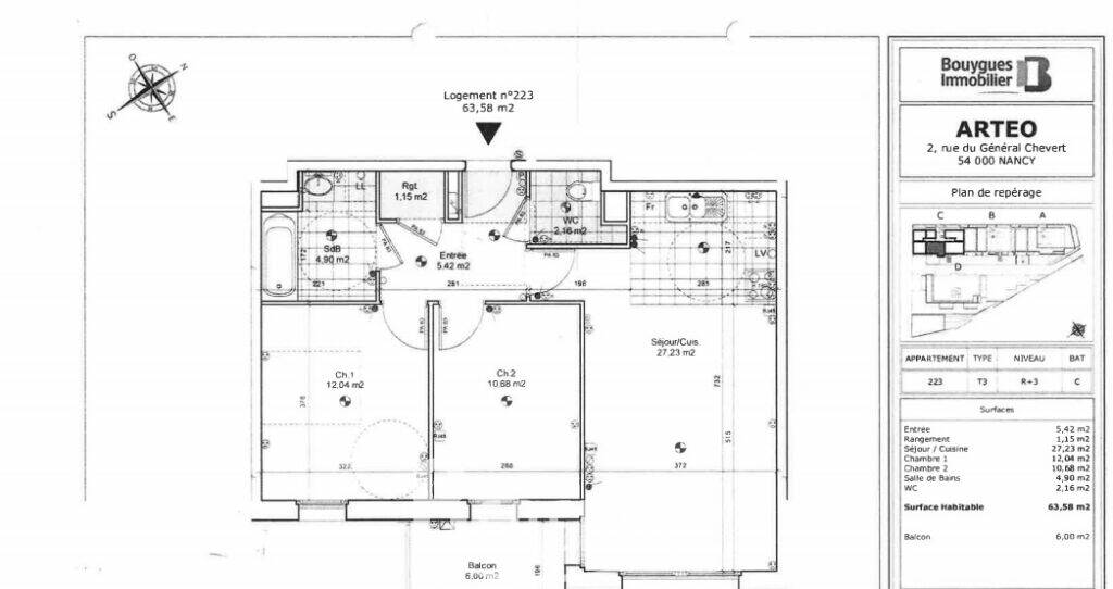
Situé au 3ème étage d'une résidence récente et sécurisée, cet appartement de 63,58 m² offre un agencement fonctionnel et agréable, à proximité des commodités.
Il se compose d'une entrée avec placard, d'un espace de vie avec séjour et cuisine équipée ouverte d'environ 27 m², donnant accès à une terrasse de 6 m² située à l'arrière de la copropriété, au calme.
L'espace nuit dessert deux chambres (12,04 m² et 10,68 m²), une salle de bains, un WC indépendant ainsi qu'un espace de rangement complémentaire.
Un emplacement de parking privatif vient compléter ce bien.
Appartement vendu libre de toute occupation à compter du 30 avril, idéal pour une résidence principale ou un investissement.
Diagnostics en cours... (6.38 % honoraires TTC à la charge de l'acquéreur.)
Copropriété de 195 lots - dont 101 lots habitation.
Charges annuelles : 1880 euros.
* 225 000 € honoraires inclus | 211 500 € hors honoraires | Honoraires à la charge de l'acquéreur
Caractéristiques
225 000 €
64 m²
1 salle de bain
2 pièces
Diagnostics
Diagnostic de performance énergétique
B
56
Indice d'émission de gaz à effet de serre
C
13
Caractéristiques supplémentaires
Agencement
Nombre de pièces: 2
1 salle de bain
1 toilette
Stationnement(s): 1
Terrasse: 1
Chauffage Collectif
Type de chauffage: Radiateur
3ème étage / 4
Financière
Charge de copropriétés: 1 880 €
Prix net: 211 500 €
Prix hors honoraires acquéreur: 211 500 €
A savoir
Référence: ARTEO-C223
Ascenseur
Année de construction: 2013
Nombre de lots: 195
Etat général: Bon Etat Bon Etat
Sous-sol
Interphone
Calme
Lumineux
DPE: B
Pièces / Surfaces
Surface totale: 64 m²
Situation du bien

Benedic | Nancy (RIL & ARIANE)
37 bis rue des Jardiniers
54000, Nancy
Logement très performant
Logement extrêmement consommateur d'énergie
Peu d'émission CO2
Emission de CO2 très importantes























