57070 Metz
Appartement Metz Queuleu 3 pièces 73 m2 + terrasse vue panoramique + garage
290 000 € *
METZ QUEULEU - Venez découvrir ce superbe appartement F3 de 73m² situé au 4ème étage avec ascenseur d'une résidence récente de 2013, parfaitement entretenue à deux pas de toutes commodités.
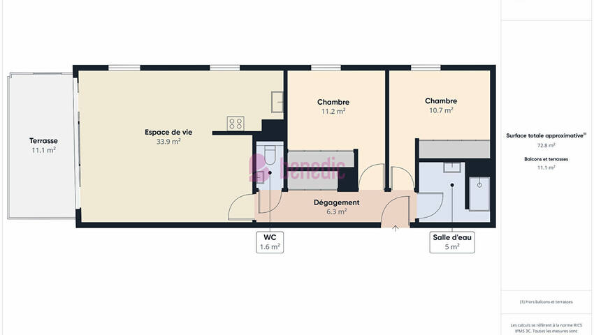
Vous serez séduit par sa pièce de vie lumineuse de 33 m² avec cuisine équipée ouverte, donnant accès à une terrasse de 11 m² exposée sud-ouest avec vue panoramique exceptionnelle sur Metz (Cathédrale et Centre Pompidou).
Espace nuit :
- 2 chambres de 11 m² et 13 m² avec placards intégrés
- Salle d'eau moderne
- Nombreux rangements dès l'entrée
RARE : un garage double fermé en sous sol + un grand jardin partagé sur l'arrière du bâtiment pour les amateurs de verdure et de jardinage.
Vous l'aurez compris, si vous cherchez un appartement où poser vos valises à deux pas de toutes commodités, cet appartement est fait pour vous.
Visite virtuelle sur demande.
A bientôt,
Karin (5.26 % honoraires TTC à la charge de l'acquéreur.)
Copropriété de 35 lots.
Charges annuelles : 1480 euros.
Karin DEFER (EI) Agent Commercial - Numéro RSAC : 878313394 - Metz.
* 290 000 € honoraires inclus | 275 500 € hors honoraires | Honoraires à la charge de l'acquéreur
Caractéristiques
290 000 €
72 m²
-
3 pièces
Diagnostics
Diagnostic de performance énergétique
B
NR
Indice d'émission de gaz à effet de serre
B
6
Caractéristiques supplémentaires
Agencement
Nombre de pièces: 3
1 salle d'eau
1 toilette
Chauffage Individuel
Cuisine Aménagée et équipée
Type de chauffage: Radiateur
4ème étage / 8
Financière
Charge de copropriétés: 1 480 €
Prix net: 275 500 €
Prix hors honoraires acquéreur: 275 500 €
A savoir
Référence: 47608
Nombre de lots: 35
Calme
Lumineux
DPE: B
Pièces / Surfaces
Surface totale: 72 m²
Situation du bien

Benedic | Metz, rue de Sarre
1 rue de Sarre
57070, Metz
Logement très performant
Logement extrêmement consommateur d'énergie
Peu d'émission CO2
Emission de CO2 très importantes



















































