57070 Metz
APPARTEMENT 3 pièces situé à METZ QUEULEU
169 000 € *
Situé au 115, Rue de Queuleu à METZ, à proximité de la Gare, des commerces et du centre ville, l'agence BENEDIC vous présente cet appartement de 3 pièces.
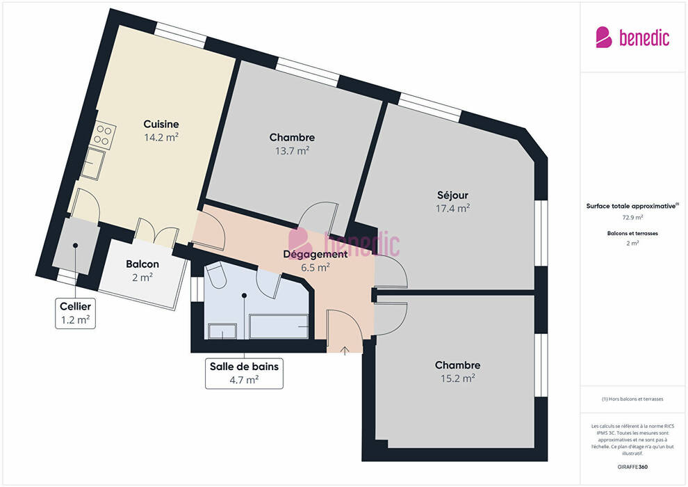
Situé au 2ème étage d'une copropriété bien tenue et aux charges faibles, cet appartement comprenant une entrée/dégagement, deux chambres, un séjour, une cuisine équipée avec cellier et accès balcon, une salle de bains avec WC.
Se atouts :
- situation géographique pratique
- chauffage individuel au gaz
- fenêtres PVC Double vitrage
- Exposition Sud Est
DPE : D
Isabelle (5.81 % honoraires TTC à la charge de l'acquéreur.)
Copropriété de 10 lots - dont 10 lots habitation. (Pas de procédure en cours).
Charges annuelles : 1000 euros.
* 169 000 € honoraires inclus | 159 722 € hors honoraires | Honoraires à la charge de l'acquéreur
Caractéristiques
169 000 €
69 m²
-
3 pièces
Diagnostics
Diagnostic de performance énergétique
D
228
Indice d'émission de gaz à effet de serre
D
49
Caractéristiques supplémentaires
Agencement
Nombre de pièces: 3
2ème étage / 4
Financière
Taxe foncière: 860 €
Charge de copropriétés: 1 000 €
Prix net: 159 722 €
Prix hors honoraires acquéreur: 159 722 €
A savoir
Référence: 46458
Nombre de lots: 10
DPE: D
Pièces / Surfaces
Surface totale: 69 m²
Situation du bien

Benedic | Metz, rue de Sarre
1 rue de Sarre
57070, Metz
Logement très performant
Logement extrêmement consommateur d'énergie
Peu d'émission CO2
Emission de CO2 très importantes