57950 Montigny-lès-Metz
APPARTEMENT 3 pièces avec JARDIN et GARAGE MONTIGNY LES METZ
199 900 € *
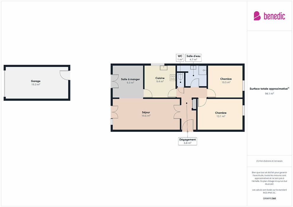
Situé à MONTIGNY LES METZ, Rue KENNEDY, secteur calme, proche de tous les commerces, commodités et transports en communs, dans une résidence des années1980, appartement de 3 pièces en REZ-DE-JARDIN comprenant : une entrée, une cuisine équipée, un salon séjour double avec accès à un JARDIN PRIVATIF d'environ 30m² , deux chambres, une salle d'eau et un WC séparé.
Un garage en ACCES DIRECT à l'appartement complète ce bien.
SES ATOUTS :
- JARDIN privatif exposé SUD et GARAGE FERME
- Fenêtres PVC double vitrage
- Convecteurs électriques récents
- Syndic bénévole - faibles charges de copropriété
- DPE : D
- Visite virtuelle disponible
(5.26 % honoraires TTC à la charge de l'acquéreur.)
Copropriété de 18 lots - dont 18 lots habitation. (Pas de procédure en cours).
Charges annuelles : 1050 euros.
* 199 900 € honoraires inclus | 189 905 € hors honoraires | Honoraires à la charge de l'acquéreur
Caractéristiques
199 900 €
74 m²
-
3 pièces
Diagnostics
Diagnostic de performance énergétique
D
235
Indice d'émission de gaz à effet de serre
B
7
Caractéristiques supplémentaires
Agencement
Nombre de pièces: 3
1 salle d'eau
Chauffage Individuel
Exposition: Sud
Type de chauffage: Convecteurs
RDC / 2
Financière
Charge de copropriétés: 1 050 €
Prix net: 189 905 €
Prix hors honoraires acquéreur: 189 905 €
A savoir
Référence: 46181
Année de construction: 1984
Nombre de lots: 18
Calme
Lumineux
DPE: D
Pièces / Surfaces
Surface totale: 74 m²
Situation du bien

Benedic | Metz, rue de Sarre
1 rue de Sarre
57070, Metz
Logement très performant
Logement extrêmement consommateur d'énergie
Peu d'émission CO2
Emission de CO2 très importantes

















































