57000 Metz
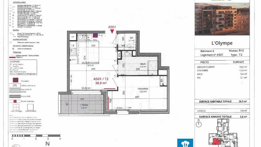
Appartement Metz 2 pièce(s) 38.9 m2
615 €CC
Vous souhaitez être proche des arrêts METTIS, proche des écoles et universités du TECHNOPOLE et des hôpitaux de METZ ?
Ce beau F2 de 38.9 m2 m2 dispose d'un espace de jour avec une cuisine ouverte équipée de m2 avec accès à un balcon de m2, de une chambre, d'une salle de douche séparée des WC; votre séjour sera baigné de lumière !
Aucune contrainte de stationnement puisque le logement dispose d'une place de parking en sous/sol.
Logement acheté sous la loi PINEL, plafonds de revenus du locataire exigé !
DPE : C
Disponible à partir du 01/08/2026.
Le bien m’intéresse ! Je souhaite déposer mon dossier de candidature.
Caractéristiques
615 €CC
39 m²
-
2 pièces
Diagnostics
Diagnostic de performance énergétique
C
79
Indice d'émission de gaz à effet de serre
C
16
Montant estimé des dépenses annuelles d'énergie pour un usage standard: entre 325 € et 439 € (prix moyens des énergies indexés au 1er janvier 2024)
En savoir plus

Ludivine BUMBOLO
Caractéristiques supplémentaires
Agencement
Nombre de pièces: 2
Stationnement(s): 1
Cuisine Equipée
5ème étage / 5
Financière
Loyer HC: 565 €
Loyer CC: 615 €
Frais d'agence: 432 €
Dont honoraires état des lieux: 118 €
Dépôt de garantie: 565 €
Provision sur charges: 50 €
A savoir
Référence: OLYMPE_A501
DPE: C
Pièces / Surfaces
Surface totale: 39 m²
Surface séjour: 19 m²
Situation du bien
Logement très performant
Logement extrêmement consommateur d'énergie
Peu d'émission CO2
Emission de CO2 très importantes


































